Attico
Ipotesi di ristrutturazione
Galleria
Altri Progetti
Home
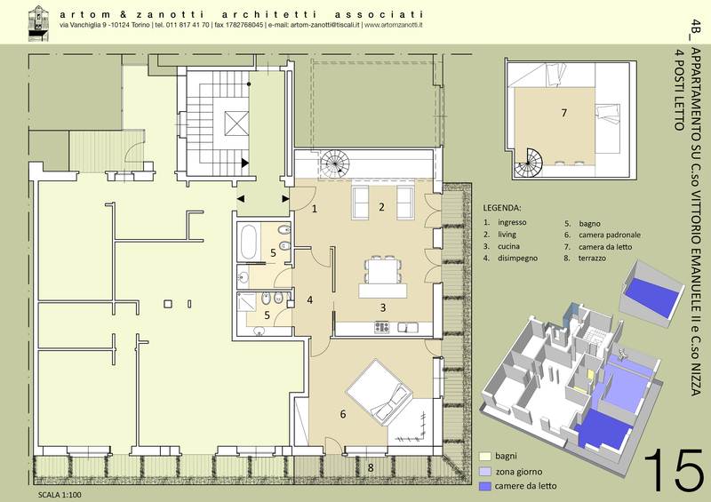
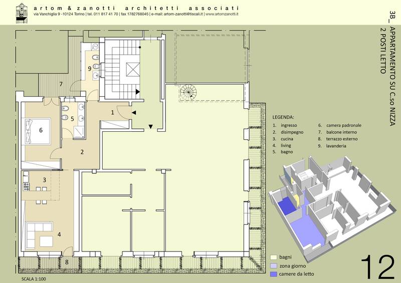
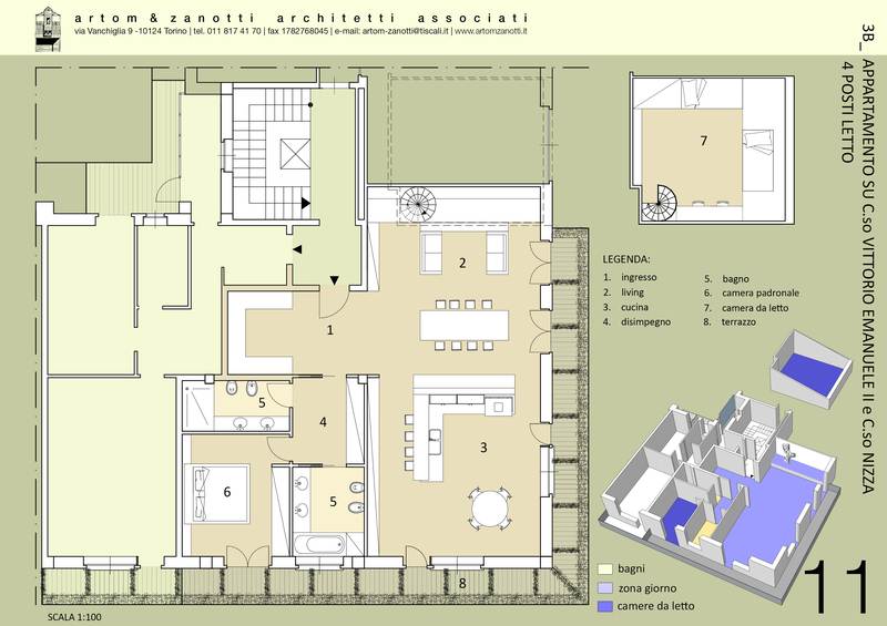
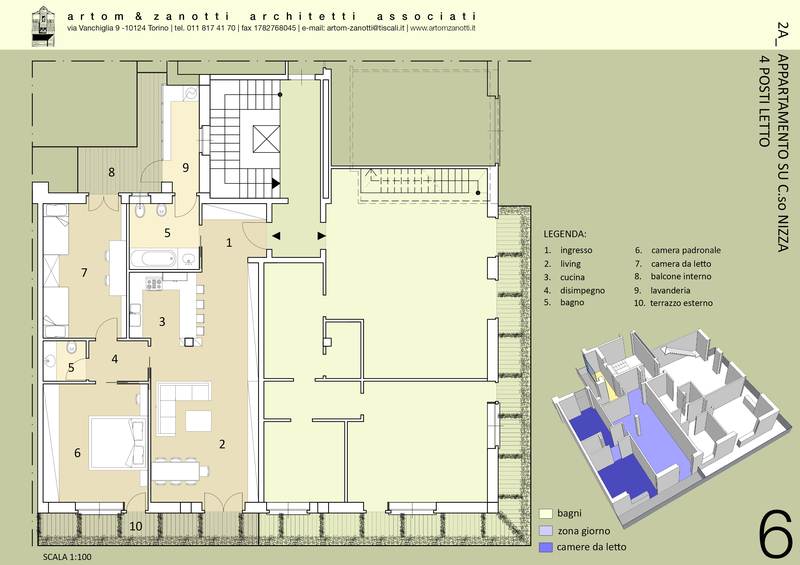
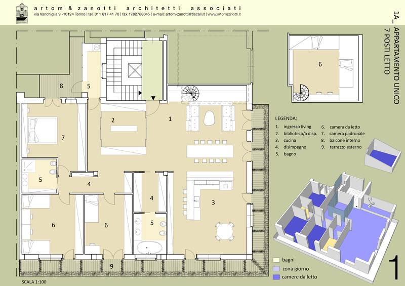
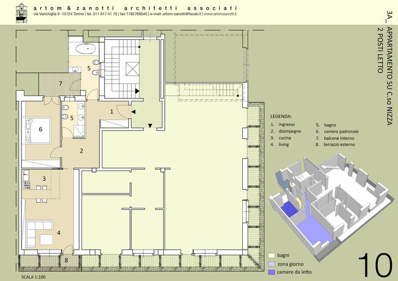
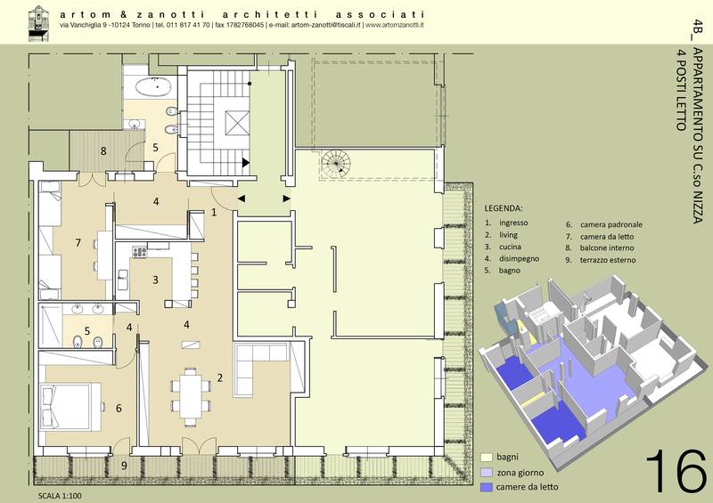
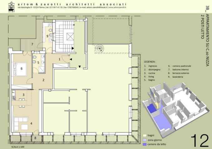
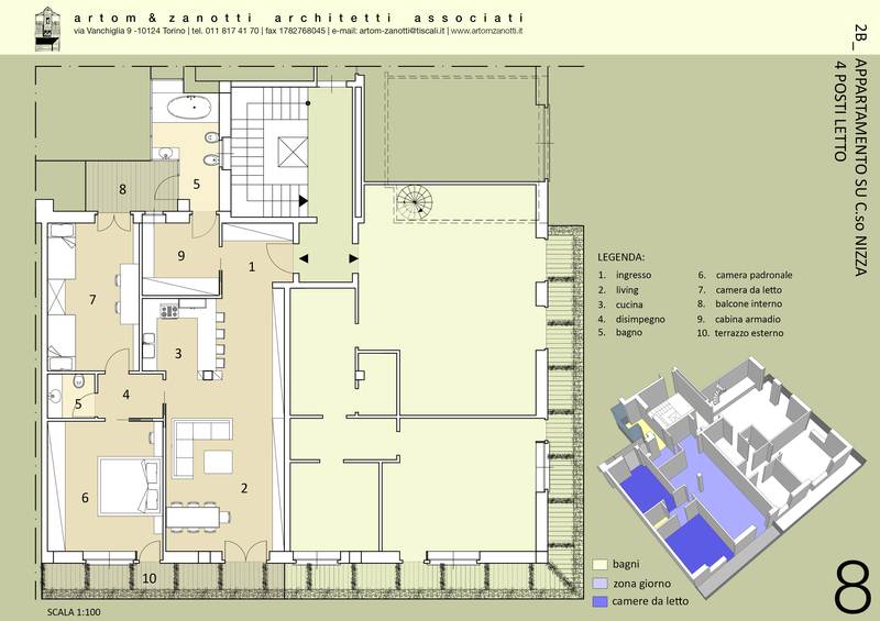
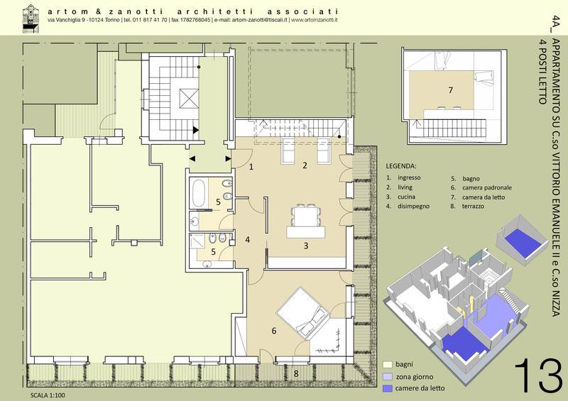
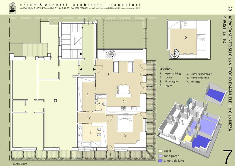
Ipotesi progettuali finalizzate alla ristrutturazione di un appartamento sito al piano attico di un fabbricato localizzato in Cuneo
Committente:
Privato
Anno:
2015
Progettisti:
artom & zanotti architetti associati
Prestazioni Professionali:
Rilievo
Studio di FattibilitÃ
Progetto Preliminare
Galleria Immagini
Clicca su un'immagine per ingrandirla